
image © park young chae
all images courtesy of moon hoon
perched upon high ground, the 'panorama house' by seoul-based architecture practice moon hoon overlooks breathtaking
vistas of yangcheong-ri, korea. an angled facade with various sized windows frames the encompassing suburb,
fluctuated for diverse perspectives. intended for a family with four children, large by contemporary standards, the home is arranged
within a linear footprint with an upper and lower spatial organization. a central multifunctional area features a large wooden
staircase which integrates bookshelves, reading nooks, cinema seating oriented towards a projection screen and slide for
a quick and fun method maneuvering through the interior. this element brings a dynamic energy to the dwelling, used by both children
and adults alike.
the ground level kitchen and dining area are of highest importance to the family, while the tv has been pushed into a small living room.
a second floor attic serves as a playroom with the best outlook toward the landscape. traditional heated floors draw inhabitants
to sit on the floor, influencing the lower positioning of windows in relation to an individual's anticipated viewpoints.

main elevation
image © park young chae

fluctuating facade
image © park young chae

illuminated at dusk
image © park young chae

entry
image © park young chae

slide for fun vertical circulation by children and adults
image © park young chae

central wooden stair, bookshelf, seating and slide
image © park young chae

cinema projection viewed from central stair
image © park young chae

view of stair and slide from living area
image © park young chae

wood stair and bookshelf
image © park young chae

diverse perspectives through the first floor's facade
image © park young chae

attic playspace
image © park young chae

during fog
image © park young chae

floor plan / level 0
1. entrance
2. kitchen
3. gallery
4. study
5. utility room
6. child room
7. bath room
8. parking lot
9. storage
10. courtyard

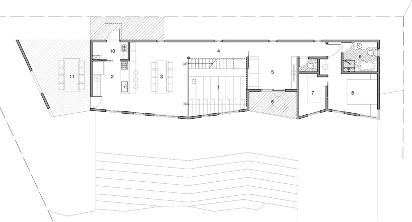
floor plan / level 1
1. stairs / bookshelf
2. kitchen
3. dining
4. gallery
5. living room
6. balcony
7. dress room
8. bed room
9. bath room
10. utility room
11. deck

floor plan / level 2
1. attic

section
1. attic
2. deck
3. kitchen
4. dining
5. stairs / bookshelf
6. living room
7. dress room
8. bed room
9. child room
10. bath room
11. study
12. kitchen
13. entrance
14. parking lot
15. storage

section
1. attic
2. balcony
3. living room
4. stairs / bookshelf
5. gallery
6. courtyard

elevation
project info:
architect: moon hoon
design team: lee ju hee / kim dong won / park sang eun
client: moon sung gwang
completion date: dec. 2011
location: 712-14 yangcheong-ri, ochang-eup, cheongwon-gun, chungbuk, korea
total site area: 570.50m2
total floor area: 209.14m2
construction: reinforced concrete + wood frame
exterior material: paint, basalt
interior material: wood flooring, wall paper
2. kitchen
3. dining
4. gallery
5. living room
6. balcony
7. dress room
8. bed room
9. bath room
10. utility room
11. deck

floor plan / level 2
1. attic

section
1. attic
2. deck
3. kitchen
4. dining
5. stairs / bookshelf
6. living room
7. dress room
8. bed room
9. child room
10. bath room
11. study
12. kitchen
13. entrance
14. parking lot
15. storage

section
1. attic
2. balcony
3. living room
4. stairs / bookshelf
5. gallery
6. courtyard

elevation
project info:
architect: moon hoon
design team: lee ju hee / kim dong won / park sang eun
client: moon sung gwang
completion date: dec. 2011
location: 712-14 yangcheong-ri, ochang-eup, cheongwon-gun, chungbuk, korea
total site area: 570.50m2
total floor area: 209.14m2
construction: reinforced concrete + wood frame
exterior material: paint, basalt
interior material: wood flooring, wall paper
No comments:
Post a Comment