
'house S' by christ.christ associated architects, wiesbaden, germany
image © thomas herrmann
all images courtesy of christ.christ associated architects
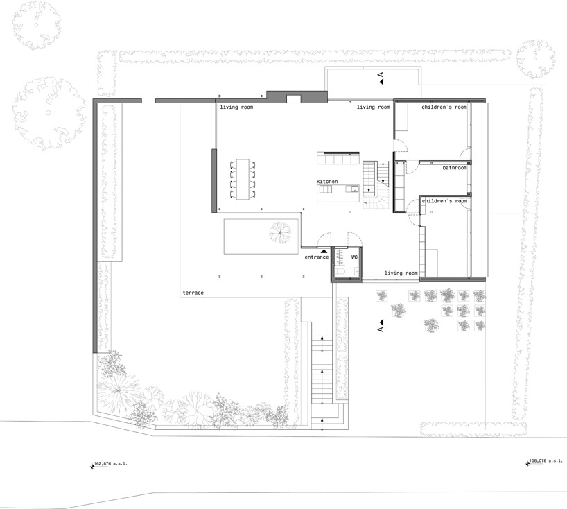
german practice christ.christ associated architects have completed 'house S', an upgrade to a bungalow constructed
in the 1960s by wilfried hilger in weisbaden, germany. to add space to the single family residence, three separate boxes
connected with a channel glass corridor were placed upon the flat cantilevered roof. the arrangement generates open-air terraces
with diverse atmospheres including a stone-paved courtyard with a pine tree, a meadow with an apple tree and a wooden
planked patio with a magnolia.

aerial view of the house
image © thomas herrmann
to enter, dwellers pass a small entry garden with a tree which grows through a void found in the overhead canopy.
the original walls which were originally found on the ground level were removed to create a large open room with
a central kitchen.

view of roof-top boxes from the side of the house
image © thomas herrmann

(left) side elevation
(right) driveway / garden
images © thomas herrmann

aerial view of front yard and entrance
image © thomas herrmann

(left) roof top meadow
(right) front door
images © thomas herrmann

entry veranda
image © thomas herrmann

portal to ground level living space
image © thomas herrmann

living room and kitchen
image © thomas herrmann

elimination of wall creates large and spacious ground floor
image © thomas herrmann

stairs
image © thomas herrmann

central stair
images © thomas herrmann

upper level glass corridor
image © thomas herrmann

upper level corridor connecting the separate rooms
image © thomas herrmann

(left) bathroom
(right) concealed storage within wall
images © thomas herrmann

(left) shower / tub
(right) view of roof courtyard from bathroom
images © thomas herrmann

image © thomas herrmann

image © thomas herrmann

image © thomas herrmann

view of roof courtyard from bedroom
image © thomas herrmann

at night
image © thomas herrmann

floor plan / level 0

floor plan / level 1

section

conceptual diagram

conceptual diagram

conceptual diagram

conceptual diagram
project info:
client: private
size of the plot: 873 m²
living space: 452 m²
start of construction: 06/2010
completion: 07/2011
design: roger christ
assistants: ronni neuber, julia url
structural engineering: schmitt + thielmann und partner | wiesbaden
photographer: thomas herrmann | stuttgart
No comments:
Post a Comment